Apt 22326 - Apartment Roscherstraße
Apartment Roscherstraße offers 1 x Apt 22326:
Maximum number of people: 6
Beds: 3 × `Sofa bed for 2 people`
Apartment size: 388 square feet ( 36 square meters )
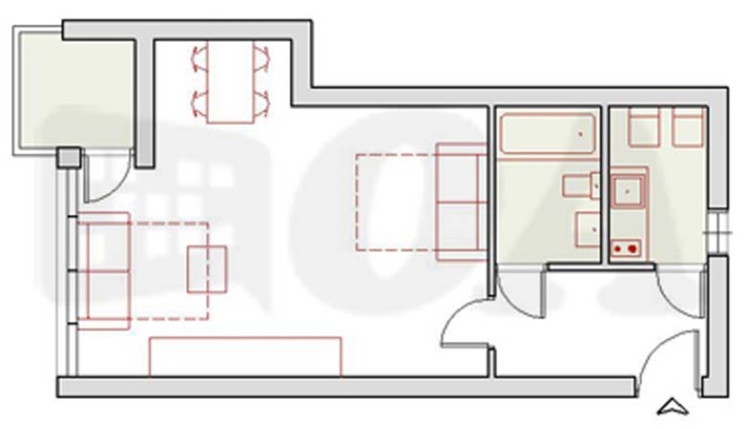
Apartment contains: 1 × Bedroom, 1 × Bathroom, 1 × Kitchen, 1 × Separated Toilet, 1 × Bedroom and living room
Room facilities: Espresso machine, Vacuum cleaner
Room highlights are:
Composition
WC, Bathroom, Kitchen, Livingroom / Bedroom
Amenities
Iron & Ironing Board, Bed Linen & Towels, DVD, TV, vacuum cleaner, heating, Espresso-Machine
Kitchen
Cookware & Kitchen Utensils, Crockery & Cutlery, electric kettle, toaster, fridge / freezer, cupboards
Bathroom
cupboard, toilet, washbasin , bathtub, mirror
Bedroom/LivingRoom
DVD, TV, lamp, 3 x double sofa bed, Table, 3 x Chair
Kudamm1 is located within 9 km of Airport
and
within 100 m of Main Railway Station
Photogallery

























































